The Hadlow - 3-bedroom homes Sittingbourne Skip to main content
INCENTIVES AVAILABLE - FIND OUT MORE AND BOOK AN APPOINTMENT TODAY!

The Hadlow – Semi-detached

Grovehurst Gate, Grovehurst Road, Sittingbourne, Kent, ME9 8RB

Call the team today
07909 912948

House Icon

From £425,000

Bed Icon

3 bedroom semi-detached

Shower Icon

2 bathrooms

Map Icon

1,029 sq ft / 95.60 sq m

Key Icon

Plots 41, 79, 81, 106

The Hadlow combines traditional charm with a thoughtfully designed interior, creating a home perfectly suited to modern family life.

Natural light fills the ground floor, with dual-aspect windows in both the living room and the open-plan kitchen/dining area. A breakfast bar, separate utility room, downstairs cloakroom, and generous hallway storage all contribute to a more organised and functional everyday space.

Upstairs, you’ll find two double bedrooms and one single bedroom. The principal bedroom benefits from wardrobe space, additional storage cupboard, and a private en-suite. A family bathroom completes the first floor of this well-balanced home.


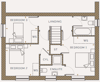
The Hadlow – Semi-detached Floorplans

Screenshot 2025-10-10 114130
KITCHEN / DINING AREA3.10m x 5.64m / 10'2" x 18'6"
LIVING ROOM2.94m x 5.64m / 9'7" x 18'6"
UTILITY2.11m x 1.26m / 6'11" x 4'1"
Screenshot 2025-10-10 114137
BEDROOM 13.13m x 3.73m / 10'3" x 12'2"
BEDROOM 24.14m x 3.00m / 10'4" x 9'10"
BEDROOM 33.03m x 2.53m / 9'11" x 8'3"

KEY

Floor plans show a typical house type and are indicative only. Details may vary from plot to plot. Dimensions are approximate and should not be used for furniture space, appliance space or carpet sizes.

Get In Touch

Grovehurst Gate

SALES TEAM: 07909 912948

Available Plots

Plot Number Availability Price Feature Enquire
41 Available £425,000

3-bed demi-detached

Enquire Now
79 Future Release TBC

Future Release

Enquire Now
81 Future Release TBC

Future Release

Enquire Now
106 Future Release TBC

Future Release

Enquire Now

Grovehurst Gate Siteplan

Grovehurst Road, Sittingbourne, Kent, ME9 8RB

Grovehurst Gate Siteplan The Barham The Barham The Barham The Barham The Throwley The Throwley The Throwley The Throwley The Throwley The Throwley The Throwley The Throwley The Throwley The Throwley The Throwley The Throwley The Throwley The Throwley The Throwley The Throwley The Throwley The Throwley The Throwley The Throwley The Throwley The Throwley The Throwley The Throwley The Throwley The Throwley The Throwley The Throwley The Throwley The Throwley The Throwley The Throwley The Throwley The Throwley The Throwley The Alkham – Semi-detached The Alkham – Semi-detached The Alkham – Semi-detached The Alkham – Semi-detached The Alkham – Semi-detached The Alkham – Semi-detached The Alkham – Semi-detached The Alkham – Semi-detached The Alkham – Semi-detached The Alkham – Semi-detached The Alkham – Semi-detached The Alkham – Semi-detached The Alkham – Semi-detached The Alkham – Semi-detached The Alkham – Detached The Alkham – Detached The Palmarsh The Hadlow – Semi-detached The Hadlow – Semi-detached The Hadlow – Semi-detached The Hadlow – Semi-detached The Hadlow – Detached The Hadlow – Detached The Bridge The Bridge The Bridge The Lenham The Lenham The Lenham The Sarre The Sarre The Sarre The Sarre The Sarre The Hollingbourne The Hollingbourne The Hollingbourne The Hollingbourne The Hollingbourne The Hollingbourne The Thurnham The Thurnham The Thurnham The Thurnham The Thurnham The Chilham

Mortgage Calculator

£
£
%

Your monthly payment

Repayment Mortgage

£0.00


Interest-only Mortgage

£490

Disclaimer: The information provided by this Pentland calculator is for illustrative purposes only and accuracy is not guaranteed. The values and figures shown are hypothetical and may not be applicable to your individual situation. Be sure to consult a financial professional prior to relying on the results.

Enquire about The Hadlow – Semi-detached

    Other developments

    75% SOLD OUT

    From £375,000


    Hawkinge, CT18 7AT

    LAST HOME REMAINING!

    From £1,150,000


    Ashford , TN25 5NX

    From £215,000


    Hawkinge, CT18 7SU


    NEW ROMNEY, TN28 8TD


    Hawkinge, CT18 7UG

    SOLD OUT


    Hawkinge, CT18 7SU